Не упусти свой шанс! Последние акции от застройщиков  ▼

Продается 2-комнатная квартира, Нововатутинский просп., 10

11 369 000 Р

Нововатутинский просп.10

Дата публикации: 13 января 2026

Дата обновления: 16 января 2026

Телефон: 
Показать телефон

+7 (495) 647-00-00

+7 (926) 125-70-13

Агентство:  ТРИУМФАЛЬНАЯ АРКА

От застройщика: 0 квартир в продаже

Этаж: 9 / 17

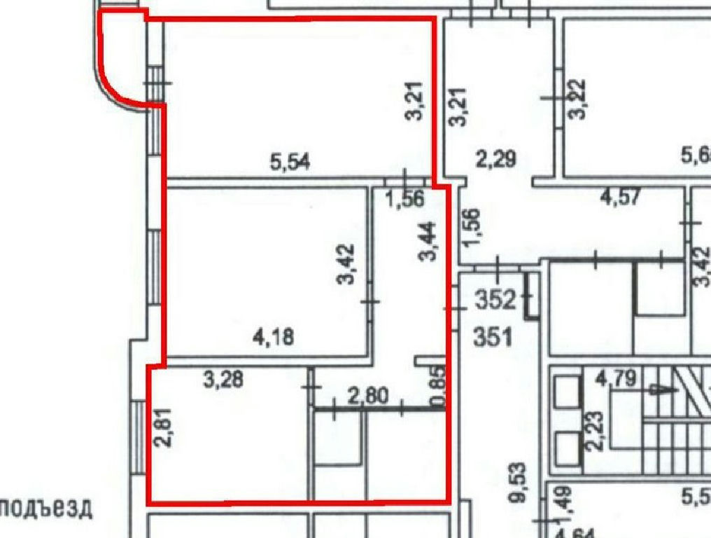
Общая: 53,4 м2

Жилая: 32,1 м2

Кухня: 9,5 м2

Комнаты: 17,8-14,3 м2

Балкон/лоджия: балкон

Лифт: есть лифт

Окна: окна во двор

Санузел: раздельный

Мусоропровод: есть

Состояние квартиры: хорошее состояние

Тип дома: монолитно-кирпичный

Год постройки: 2012

Территория: огороженная

Парковка: есть

Статус сделки: продажа

Сделка: прямая продажа

Собственность: не указано

Основание права собственности: не указано

Описание

ОН 22860. Покупайте квартиру в Новой Москве, московская прописка!

Комнаты изолированные, раздельный санузел, балкон в большой комнате,
все окна выходят во двор.
Есть стиральная машинка и холодильник.
Требуется ремонт.

Двор с современными детскими и спортивными площадками.
Развитая инфраструктура района:
школа и детский сад в шаговой доступности,
сетевые магазины, пункты выдачи заказов, салоны красоты, аптеки.

До метро Ольховая 15 минут.
Остановка общественного транспорта в 3 минутах от подъезда.
Удобный выезд на Калужское шоссе, 14 км до МКАД.

До 2029 года будет открыта станция метро Ватутинки
на пересечении Калужского шоссе и Славского проспекта.

Документы проверены, ДДУ 2012 года.
Звоните, смотрите квартиру и покупайте!

Квартира на карте

ПанорамыКарта
Спецпредложения
Добавить объявление